Un studio de 26m2 installé dans un immeuble fait de containers
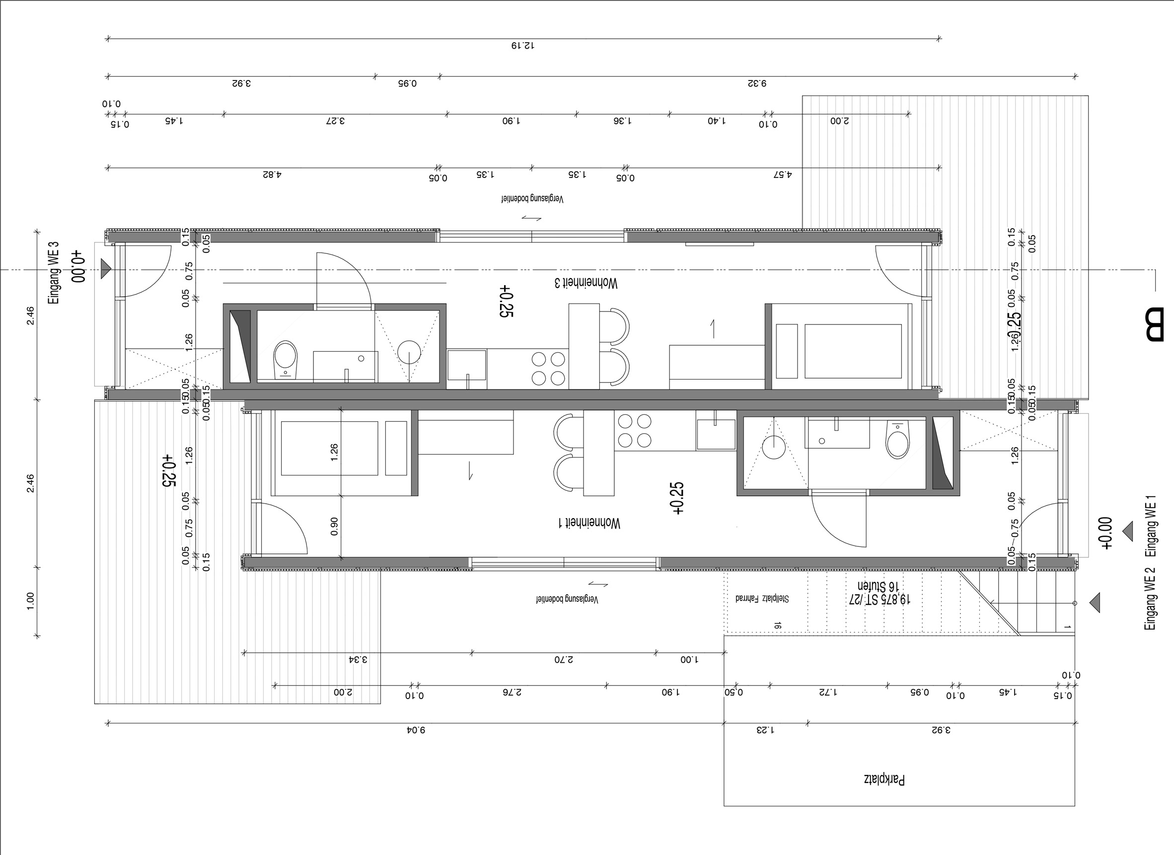
Un studio de 26m2 installé dans un immeuble fait de containers C'est en Allemagne que l'entreprise Containerwerk, spécialisée dans la construction de logements à base de containers, a construit un immeuble de studios, dans un immeuble fait de 21 modules désaffectés. Ils ont été disposés par groupes de trois et la façade métallique a été habillée en bois non traité, afin de devenir un habitat durable. Chaque appartement mesure 26m² et possède l'équipement et le mobilier de base pour être habitable immédiatement.
C'est en Allemagne que l'entreprise Containerwerk, spécialisée dans la construction de logements à base de containers, a construit un immeuble de studios, dans un immeuble fait de 21 modules désaffectés. Ils ont été disposés par groupes de trois et la façade métallique a été habillée en bois non traité, afin de devenir un habitat durable. Chaque appartement mesure 26m² et possède l'équipement et le mobilier de base pour être habitable immédiatement.
26m2 studio in a building made of containers.
It is in Germany that the company Containerwerk, which specialises in the construction of container-based housing, has built a studio building in a building made up of 21 disused modules. They were arranged in groups of three and the metal facade was clad in untreated wood, in order to become a sustainable habitat. Each apartment measures 26m² and has the basic equipment and furniture to be immediately livable.
Source : Dezeen








26m2 studio in a building made of containers.
It is in Germany that the company Containerwerk, which specialises in the construction of container-based housing, has built a studio building in a building made up of 21 disused modules. They were arranged in groups of three and the metal facade was clad in untreated wood, in order to become a sustainable habitat. Each apartment measures 26m² and has the basic equipment and furniture to be immediately livable.
Source : Dezeen
Shop the look !




Livres















Commentaires